新築一戸建
ブルーライン 新横浜
ブルーライン 新横浜駅 徒歩 26分 この駅が最寄り駅の物件一覧を見る
横浜線 小机駅 徒歩 22分
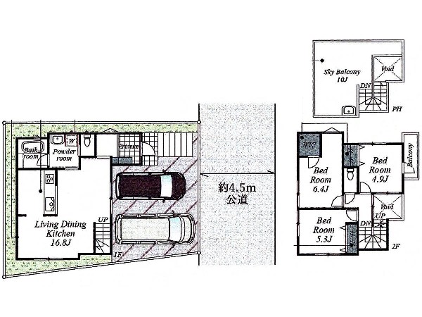
3LDK+Wic+スカイバルコニー ZEH水準住宅 耐震装置『MAMORY』搭載 リビング壁は補強済

| 学区 |
城郷小学校 →この学区の物件一覧を見る 城郷中学校 →この学区の物件一覧を見る |
|---|---|
| 用途地域 | 第一種低層住居専用地域 |
| 地目 | 宅地 |
| 建ぺい率 | 50% |
| 容積率 | 80% |
| 駐車場 | 有り カースペース |
| 接道 | 南東4.5m |
| 権利 | 所有権 |
| 私道面積 | 無し |
|---|---|
| セットバック | 無し |
| 建物構造 | 木造 |
| 建物階数 | 2階 |
| 築年月 | 2026/04 |
| 入居日 | 2026/05 |
| 建築確認番号 | 第25KAK建確02110号 |
| 都市計画 | 市街化区域 |
| 取引態様 | 仲介 |
| 物件番号 | A2025 |
|---|---|
| 設備 | 都市ガス、公営水道、下水、吹き抜け、省エネルギー対策、耐震構造、駐車場2台以上、緑豊かな住宅地、閑静な住宅地、都市近郊、地盤調査済、市街地が近い、周辺交通量少なめ、スーパーが近い(10分以内)、2沿線以上利用可、公園5分以内、コンビニ5分以内、ウォークインクローゼット、対面キッチン、都市ガス、システムキッチン、ガス3口、対面キッチン、浄水器、I型キッチン、ユニットバス、追い焚き、浴室乾燥機、ウォシュレット、トイレ2ヶ所、浴室に窓、暖房便座、バルコニー、ルーフバルコニー、南面バルコニー、2階建、LDK15畳以上、全室2面採光、東南向き、リビング階段、スマートキー、クローゼット、ウォークインクローゼット、収納、下駄箱、全居室収納、シャンプドレッサー付き、モニタ付きインターフォン、カードキー、ペアガラス、火災警報器、通風良好、24時間換気システム、建物10年保証 |
| 特記事項 | 宅地造成工事規制区域:有/高度地区:有/日影制限:有/高さ限度:有/建築基準法第22条による区域 緑化地域 駐車は車種により2台可。 / |
| 備考 | 3LDK+Wic+スカイバルコニー ZEH水準住宅 耐震装置『MAMORY』搭載 リビング壁は補強済 |