新築一戸建
グリーンライン 日吉本町
グリーンライン 日吉本町駅 徒歩 14分 この駅が最寄り駅の物件一覧を見る
東急東横線 綱島駅 徒歩 15分
「日吉本町」「綱島」「新綱島」の3駅3路線が徒歩圏 通勤通学に便利な立地です 小学校まで徒歩3分

| 学区 |
北綱島小学校 →この学区の物件一覧を見る 日吉台中学校 →この学区の物件一覧を見る |
|---|---|
| 用途地域 | 第一種中高層住居専用地域 |
| 地目 | 宅地 |
| 建ぺい率 | 60% |
| 容積率 | 150% |
| 駐車場 | 有り ビルトイン車庫 |
| 接道 | 南西4m |
| 権利 | 所有権 |
| 私道面積 | 無し |
|---|---|
| セットバック | 無し |
| 建物構造 | 木造 |
| 建物階数 | 3階 |
| 築年月 | 2025/07 |
| 入居日 | 即時 |
| 建築確認番号 | |
| 都市計画 | 市街化区域 |
| 取引態様 | 仲介 |
| 物件番号 | A1744-C |
|---|---|
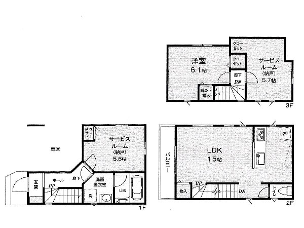
| 設備 | 都市ガス、公営水道、下水、省エネルギー対策、ビルトインガレージ、駐車場1台、閑静な住宅地、都市近郊、地盤調査済、南側道路面す、市街地が近い、周辺交通量少なめ、スーパーが近い(10分以内)、駅まで平坦、2沿線以上利用可、小学校徒歩10分以内、保育施設・幼稚園5分以内、公園5分以内、コンビニ5分以内、対面キッチン、都市ガス、システムキッチン、ガス3口、対面キッチン、食器洗浄機、浄水器、ユニットバス、追い焚き、浴室乾燥機、ウォシュレット、トイレ2ヶ所、浴室に窓、暖房便座、バルコニー、南面バルコニー、3階建以上、LDK15畳以上、採光3面、リビング階段、スマートキー、クローゼット、収納、下駄箱、シャンプドレッサー付き、年内入居可、モニタ付きインターフォン、ペアガラス、火災警報器、全居室複層ガラスか複層サッシ、陽当り良好、24時間換気システム、建物10年保証 |
| 特記事項 | 宅地造成工事規制区域:有/高度地区:有/準防火地域:有/日影制限:有/緑化地域 間取りSは納戸 建物面積に車庫面積10.67平米を含む 告示事項あり。 / |
| 備考 | 「日吉本町」「綱島」「新綱島」の3駅3路線が徒歩圏 通勤通学に便利な立地です 小学校まで徒歩3分 |