中古一戸建
東急東横線 綱島
東急東横線 綱島駅 徒歩 8分 この駅が最寄り駅の物件一覧を見る
東急新横浜線 新綱島駅 徒歩 9分
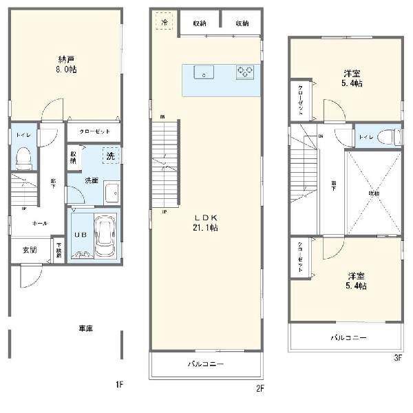
東横線「綱島」駅徒歩8分。閑静な住宅地。家族が集うリビングは吹抜けで開放感があります。会話が弾む対面キッチン。納戸も居室としてご利用頂けます。

| 学区 |
大曽根小学校 →この学区の物件一覧を見る 樽町中学校 →この学区の物件一覧を見る |
|---|---|
| 用途地域 | 第一種住居地域 |
| 地目 | 宅地 |
| 建ぺい率 | 60% |
| 容積率 | 164% |
| 駐車場 | 有り ビルトイン車庫 駐車場面積:8.59 |
| 接道 | 南4.1m |
| 権利 | 所有権 |
| 私道面積 | 無し |
|---|---|
| セットバック | 無し |
| 建物構造 | 木造 |
| 建物階数 | 3階 |
| 築年月 | 2015/09 |
| 入居日 | 相談 |
| 建築確認番号 | |
| 都市計画 | 市街化区域 |
| 取引態様 | 仲介 |
| 物件番号 | 48312 |
|---|---|
| 設備 | 都市ガス、公営水道、下水、ビルトインガレージ、緑豊かな住宅地、閑静な住宅地、南側道路面す、スーパーが近い(10分以内)、2沿線以上利用可、小学校徒歩10分以内、保育施設・幼稚園5分以内、公園5分以内、コンビニ5分以内、対面キッチン、都市ガス、ガス3口、対面キッチン、I型キッチン、トイレ2ヶ所、浴室に窓、バルコニー、南面バルコニー、3階建以上、LDK20畳以上、採光2面、採光3面、全室2面採光、フローリング、リビング階段、クローゼット、収納、下駄箱、全居室収納、24時間換気システム |
| 特記事項 | 宅地造成工事規制区域 高度地区 準防火地域 日影制限 建築基準法第22条区域 地型縦長 建物面積に車庫面積8.59平米含 宅地造成工事規制区域:有/高度地区:有/準防火地域:有/日影制限:有/建築基準法第22条区域 地型縦長 建物面積に車庫面積8.59平米含。 / |
| 備考 | 東横線「綱島」駅徒歩8分。閑静な住宅地。家族が集うリビングは吹抜けで開放感があります。会話が弾む対面キッチン。納戸も居室としてご利用頂けます。 |