新築一戸建
東急東横線 大倉山
東急東横線 大倉山駅 徒歩 12分 この駅が最寄り駅の物件一覧を見る
東急東横線 大倉山駅 バス停「 太尾神社前」まで バス利用 3分 徒歩 7分
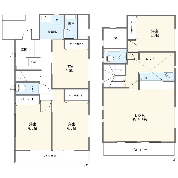
東急東横線「大倉山」」駅から徒歩12分。緑豊かで、閑静な住環境。日差しが取り込みやすく、プライバシーに配慮した2階リビング。ロフト有

| 学区 |
大曽根小学校 →この学区の物件一覧を見る 樽町中学校 →この学区の物件一覧を見る |
|---|---|
| 用途地域 | 第一種低層住居専用地域 |
| 地目 | 宅地 |
| 建ぺい率 | 60% |
| 容積率 | 100% |
| 駐車場 | 有り カースペース |
| 接道 | 北東4m |
| 権利 | 所有権 |
| 私道面積 | 無し |
|---|---|
| セットバック | 無し |
| 建物構造 | 木造 |
| 建物階数 | 2階 |
| 築年月 | 2025/12 |
| 入居日 | 2026/01 |
| 建築確認番号 | 第24KAK建確03709号 |
| 都市計画 | 市街化区域 |
| 取引態様 | 仲介 |
| 物件番号 | |
|---|---|
| 設備 | 都市ガス、公営水道、下水、駐車場1台、高台に立地、緑豊かな住宅地、閑静な住宅地、地盤調査済、市街地が近い、周辺交通量少なめ、スーパーが近い(10分以内)、始発駅、2沿線以上利用可、小学校徒歩10分以内、システムキッチン、対面キッチン、浄水器、I型キッチン、パントリー(食器・食品の収納庫)、浴室乾燥機、ウォシュレット、トイレ2ヶ所、浴室1坪以上、浴室に窓、南面バルコニー、2階建、LDK18畳以上、南向き、フローリング、全室フローリング、リビング階段、ウォークインクローゼット、収納、床下収納、下駄箱、全居室収納、シャンプドレッサー付き、南庭、フラット35Sに対応、モニタ付きインターフォン、ペアガラス、通風良好、陽当り良好、眺望良好、24時間換気システム、対面キッチン、都市ガス |
| 特記事項 | 宅地造成工事規制区域 高度地区 準防火地域 日影制限 敷地面積最低限度 建物高さ10m以下 建築基準法第22条区域 横浜市建築基準条例第3条による制限有 ※建物建築・再建築の際、深基礎、基礎杭、擁壁の補修・再構築、外壁後退等の対策が必要となる場合があります 建物建築・再建築の際、防護壁の設置、高基礎、外壁後退等の対策が必要となる場合があります 宅地造成工事規制区域:有/高度地区:有/準防火地域:有/日影制限:有/敷地面積最低限度:有/高さ限度:有/建築基準法第22条区域 横浜市建築基準条例第3条による制限有 ※建物建築・再建築の際、深基礎、基礎杭、擁壁の補修・再構築、外壁後退等の対策が必要となる場合があります 建物建築・再建築の際、防護壁の設置、高基礎、外壁後退等の対策が必要となる場合があります。 / |
| 備考 | 東急東横線「大倉山」」駅から徒歩12分。緑豊かで、閑静な住環境。日差しが取り込みやすく、プライバシーに配慮した2階リビング。ロフト有 |