新築一戸建
京王線 国領
京王線 国領駅 徒歩 21分 この駅が最寄り駅の物件一覧を見る
小田急線 狛江駅 徒歩 23分
「国領」「狛江」駅徒歩圏 太陽光発電、耐震に優れた住宅 ライフステージに合わせて間取り変更可能です

| 学区 |
狛江市立和泉小学校 →この学区の物件一覧を見る 狛江市立狛江第三中学校 →この学区の物件一覧を見る |
|---|---|
| 用途地域 | 第一種低層住居専用地域 |
| 地目 | 宅地 |
| 建ぺい率 | 40% |
| 容積率 | 80% |
| 駐車場 | 有り カースペース |
| 接道 | 西4m |
| 権利 | 所有権 |
| 私道面積 | 無し |
|---|---|
| セットバック | 無し |
| 建物構造 | 木造 |
| 建物階数 | 2階 |
| 築年月 | 2025/12 |
| 入居日 | 2025/12 |
| 建築確認番号 | 第HPA-25-09950-1号 |
| 都市計画 | 市街化区域 |
| 取引態様 | 仲介 |
| 物件番号 | A1745 |
|---|---|
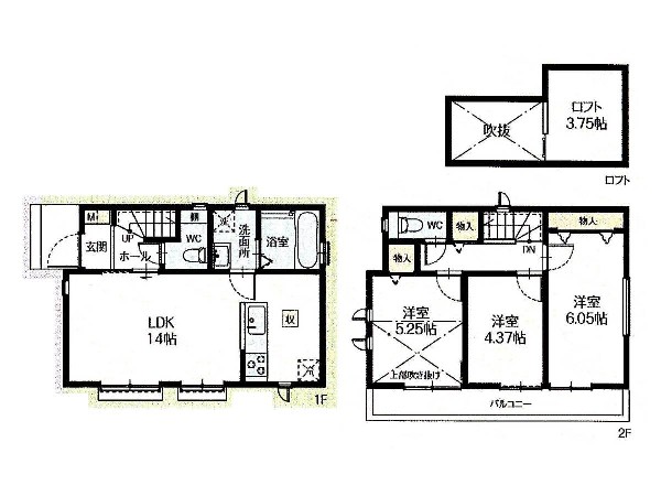
| 設備 | 都市ガス、公営水道、下水、吹き抜け、省エネルギー対策、耐震構造、シックハウス対策、外壁サイディング、駐車場1台、整形地、閑静な住宅地、平坦地、都市近郊、地盤調査済、市街地が近い、周辺交通量少なめ、スーパーが近い(10分以内)、2沿線以上利用可、総合病院徒歩10分以内、保育施設・幼稚園5分以内、公園5分以内、コンビニ5分以内、太陽光発電システム、対面キッチン、都市ガス、整形地、システムキッチン、ガス3口、対面キッチン、食器洗浄機、浄水器、ユニットバス、追い焚き、浴室乾燥機、ウォシュレット、トイレ2ヶ所、浴室に窓、暖房便座、浴室暖房、バルコニー、テラス、ワイドバルコニー、南面バルコニー、2階建、ロフト、太陽光発電システム、採光2面、南面3室、全室南向き、クローゼット、収納、床下収納、下駄箱、シャンプドレッサー付き、フラット35Sに対応、年内入居可、モニタ付きインターフォン、ペアガラス、火災警報器、陽当り良好、24時間換気システム、建物10年保証 |
| 特記事項 | 景観法:有/高度地区:有/日影制限:有/敷地面積最低限度:有/高さ限度:有/建築基準法第22条による区域。 / |
| 備考 | 「国領」「狛江」駅徒歩圏 太陽光発電、耐震に優れた住宅 ライフステージに合わせて間取り変更可能です |