新築一戸建
大師線 小島新田
大師線 小島新田駅 徒歩 3分 この駅が最寄り駅の物件一覧を見る
京浜東北線 川崎駅 バス停「 殿町小学校前」まで バス利用 20分 徒歩 5分
駅3分の好立地 都心へのアクセス良好 平坦地なのでベビーカーや自転車もラクラク 便利な生活が送れそう

| 学区 |
殿町小学校 →この学区の物件一覧を見る 大師中学校 →この学区の物件一覧を見る |
|---|---|
| 用途地域 | 準工業地域 |
| 地目 | 宅地 |
| 建ぺい率 | 60% |
| 容積率 | 200% |
| 駐車場 | 有り ビルトイン車庫 |
| 接道 | 西7.9m |
| 権利 | 所有権 |
| 私道面積 | 無し |
|---|---|
| セットバック | 無し |
| 建物構造 | 木造 |
| 建物階数 | 3階 |
| 築年月 | 2026/03 |
| 入居日 | 2026/03 |
| 建築確認番号 | 25KAK建確01448 |
| 都市計画 | 市街化区域 |
| 取引態様 | 仲介 |
| 物件番号 | A1945-E |
|---|---|
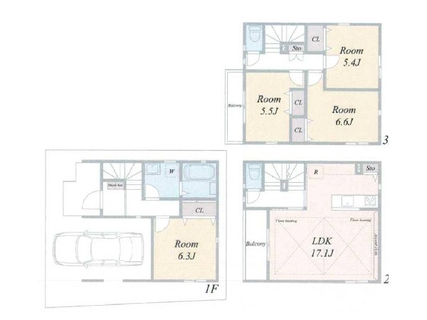
| 設備 | 都市ガス、公営水道、下水、省エネルギー対策、ビルトインガレージ、駐車場1台、区画整理地内、閑静な住宅地、平坦地、都市近郊、地盤調査済、前道6m以上、市街地が近い、周辺交通量少なめ、スーパーが近い(10分以内)、駅まで平坦、2沿線以上利用可、総合病院徒歩10分以内、小学校徒歩10分以内、保育施設・幼稚園5分以内、公園5分以内、コンビニ5分以内、対面キッチン、都市ガス、システムキッチン、ガスコンロ、ガス3口、カウンターキッチン、対面キッチン、食器洗浄機、浄水器、ユニットバス、追い焚き、浴室乾燥機、ウォシュレット、オートバス付き、トイレ2ヶ所、浴室1坪以上、浴室に窓、暖房便座、浴室暖房、バルコニー、3階建以上、LDK15畳以上、採光3面、全室2面採光、フローリング、全室フローリング、スマートキー、クローゼット、収納、床下収納、下駄箱、全居室収納、シャンプドレッサー付き、モニタ付きインターフォン、ペアガラス、火災警報器、24時間換気システム、建物10年保証 |
| 特記事項 | 景観法:有/航空法:有/宅地造成工事規制区域:有/高度地区:有/準防火地域:有/日影制限:有/高さ限度:有/建物面積に車庫面積13.76平米含む、間取Sは納戸。 / |
| 備考 | 駅3分の好立地 都心へのアクセス良好 平坦地なのでベビーカーや自転車もラクラク 便利な生活が送れそう |