横浜の一戸建てや土地を探すなら【ホームタウンよこはま】 横浜市金沢区 一戸建て 新築 今週末モデルハウス見学会開催中!「金沢文庫」駅利用 新築一戸建て 5LDK

新築一戸建

京浜急行本線 金沢文庫

今週末モデルハウス見学会開催中!「金沢文庫」駅利用 新築一戸建て 5LDK

価格
6,380万円
所在地
横浜市金沢区 釜利谷西6丁目 このエリアの物件一覧を見る
交通

京浜急行本線 金沢文庫駅 バス停「 野村住宅センター」まで バス利用 16分 徒歩 7分 この駅が最寄り駅の物件一覧を見る

逗子線 金沢八景駅 バス停「 相武隧道」まで バス利用 11分 徒歩 15分

土地面積
254.09m²
建物面積
105.3m²
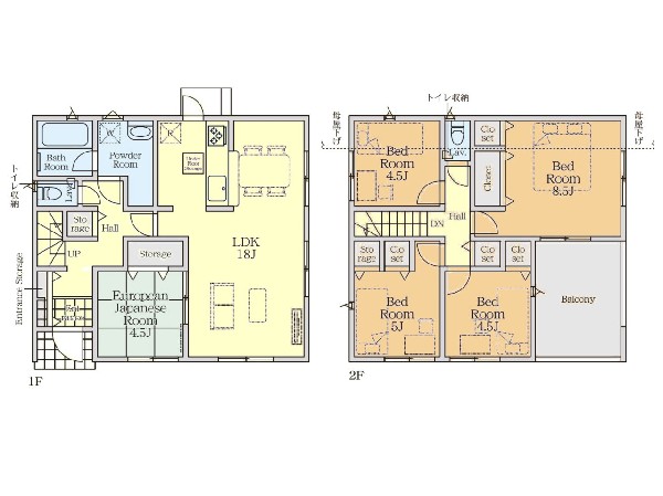
間取り
5LDK

京急線「金沢文庫」駅利用。ゆとりの5LDK。カースペース並列4台。LDKは、ご家族との会話が弾む対面キッチン。日差し溢れるルーフバルコニー付。

  • 外観

    外観:良好な住環境が保たれたエリア。
  • 間取り

    間取図
  • 外観

    外観:光と風が行わたる開放感あふれる邸宅
  • 外観

    外観:閑静な住宅地で子育て家族にピッタリ。
  • 外観

    外観:落ち着きある住宅街、一種低層住居専用地域内に位置しています。
  • 外観

    外観:四季を通じて自然と触れ合えるスポットが周辺には盛りだくさん!
  • 外観

    外観:風通しの良い住宅地
  • 外観

    外観:緑に恵まれた閑静な住宅地は、毎日のお散歩も快適。
  • 外観

    外観:目の前に広がる開放感とゆとり、暮らしの夢を育む理想の住まいがここにはあります。
  • 外観

    外観:毎日のお散歩も快適な緑に恵まれたエリアは伸び伸びスローライフを叶えてくれます。
  • 外観

    外観:目の前に広がる開放感とゆとり

物件周辺マップ

本物件最寄り駅から 通勤・通学で利用する駅からの所要時間

利用駅 駅まで

利用駅 駅まで

所要時間は 分です

会員登録し、利用駅情報を記入されますと、全ての物件で自動的に所要時間が表示され大変便利です。

会員登録はこちら

※既に会員の方で、利用駅情報が未記入の場合はマイページから情報をご記入ください。

※未だ会員登録をされていない方は、利用駅をご記入ください。

ローンシミュレーション

この物件の月々のお支払額

ボーナス時お支払額(×年2回)

年収に対する返済比率で安全性をチェック

※会員登録し、詳細情報を記入されますと、全ての物件で自動的に金額が表示され、大変便利です。

※未だ会員登録をされていない方は、下記チェック欄をご記入ください。

※上記計算は物件価格 6,380万円+諸経費 8%込みの金額による結果となります。

※返済金額はあくまでも目安です。

お客様の条件から シミュレーションするには

会員登録してローン情報を入力しておくと

全ての物件に対してローンシミュレーションを表示できます

会員情報にシミュレーション条件が未登録のお客様

マイページからシミュレーション条件を登録する

ゲストとしてシミュレーションするお客様

ローンシミュレーションを入力する↓
金利

変動金利と固定金利の比較

金利優遇について

ボーナス払い(年2回)
   

ボーナス払いを設定する人って、実際どのくらいいるの?

ボーナス払いの設定の目安は?

返済年数
       

返済年数の決めかたを教えてください。

頭金
   

頭金の目安は?

頭金は多い方がよいのですか?

頭金なしで購入するのと、頭金を貯金してからとではどちらが良いのですか?

年収
万円

返済比率の決めかたを教えてください。

詳細概要

学区

義務教育学校西金沢学園小学校

義務教育学校西金沢学園中学校

用途地域 第一種低層住居専用地域
地目 宅地
建ぺい率 30%
容積率 60%
駐車場 有り カースペース
接道 南6.5m
権利 所有権
私道面積 無し
セットバック 無し
建物構造 木造
建物階数 2階
築年月 2026/02
入居日 2026/03
建築確認番号 第R07SHC119863号
都市計画 市街化区域
取引態様 仲介
物件番号 48200
設備 都市ガス、公営水道、下水、駐車場2台以上、緑豊かな住宅地、閑静な住宅地、土地50坪以上、南側道路面す、前道6m以上、小学校徒歩10分以内、中学校徒歩10分以内、対面キッチン、都市ガス、システムキッチン、ガス3口、カウンターキッチン、対面キッチン、勝手口、I型キッチン、ユニットバス、追い焚き、浴室乾燥機、ウォシュレット、トイレ2ヶ所、浴室に窓、暖房便座、浴室暖房、バルコニー、ルーフバルコニー、南面バルコニー、2階建、LDK15畳以上、採光2面、フローリング、クローゼット、収納、床下収納、下駄箱、全居室収納、シャンプドレッサー付き、モニタ付きインターフォン、全居室複層ガラスか複層サッシ、24時間換気システム、建物10年保証
特記事項 建築協定 壁面後退 宅地造成工事規制区域 高度地区 風致地区 日影制限 敷地面積最低限度 建物高さ10m以下 建築基準法第22条による区域 建築協定:有/壁面後退:有/宅地造成工事規制区域:有/高度地区:有/風致地区:有/日影制限:有/敷地面積最低限度:有/高さ限度:有/建築基準法第22条による区域。 /
備考 京急線「金沢文庫」駅利用。ゆとりの5LDK。カースペース並列4台。LDKは、ご家族との会話が弾む対面キッチン。日差し溢れるルーフバルコニー付。