横浜の一戸建てや土地を探すなら【ホームタウンよこはま】 横浜市金沢区 一戸建て 新築 今週末モデルハウス見学会開催中!「金沢文庫」駅利用 新築一戸建て(1) 長期優良住宅

新築一戸建

京浜急行本線 金沢文庫

今週末モデルハウス見学会開催中!「金沢文庫」駅利用 新築一戸建て(1) 長期優良住宅

価格
7,180万円
所在地
横浜市金沢区 釜利谷東5丁目 このエリアの物件一覧を見る
交通

京浜急行本線 金沢文庫駅 徒歩 19分 この駅が最寄り駅の物件一覧を見る

京浜急行本線 金沢文庫駅 バス停「 神明前」まで バス利用 5分 徒歩 2分

土地面積
165.98m²
建物面積
110.1m²
間取り
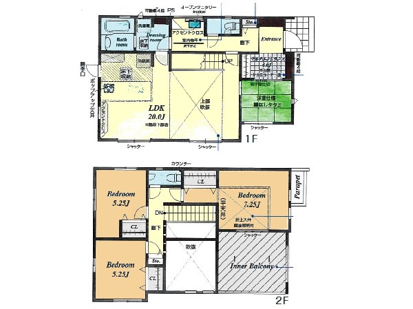
4LDK

京急線「金沢文庫」駅利用。全室2面採光なので、明るく通風良好なお住まいです。リビングは開放的な吹抜け。食洗機・浴室乾燥機・ペアガラス他設備充実。

  • 間取り

    間取り:間取図1号棟
  • 区画図

    区画図
  •  

    準備中
  •  

    準備中

物件周辺マップ

本物件最寄り駅から 通勤・通学で利用する駅からの所要時間

利用駅 駅まで

利用駅 駅まで

所要時間は 分です

会員登録し、利用駅情報を記入されますと、全ての物件で自動的に所要時間が表示され大変便利です。

会員登録はこちら

※既に会員の方で、利用駅情報が未記入の場合はマイページから情報をご記入ください。

※未だ会員登録をされていない方は、利用駅をご記入ください。

ローンシミュレーション

この物件の月々のお支払額

ボーナス時お支払額(×年2回)

年収に対する返済比率で安全性をチェック

※会員登録し、詳細情報を記入されますと、全ての物件で自動的に金額が表示され、大変便利です。

※未だ会員登録をされていない方は、下記チェック欄をご記入ください。

※上記計算は物件価格 7,180万円+諸経費 8%込みの金額による結果となります。

※返済金額はあくまでも目安です。

お客様の条件から シミュレーションするには

会員登録してローン情報を入力しておくと

全ての物件に対してローンシミュレーションを表示できます

会員情報にシミュレーション条件が未登録のお客様

マイページからシミュレーション条件を登録する

ゲストとしてシミュレーションするお客様

ローンシミュレーションを入力する↓
金利

変動金利と固定金利の比較

金利優遇について

ボーナス払い(年2回)
   

ボーナス払いを設定する人って、実際どのくらいいるの?

ボーナス払いの設定の目安は?

返済年数
       

返済年数の決めかたを教えてください。

頭金
   

頭金の目安は?

頭金は多い方がよいのですか?

頭金なしで購入するのと、頭金を貯金してからとではどちらが良いのですか?

年収
万円

返済比率の決めかたを教えてください。

詳細概要

学区

釜利谷小学校 →この学区の物件一覧を見る

釜利谷中学校 →この学区の物件一覧を見る

用途地域 第一種住居地域
地目 宅地
建ぺい率 60%
容積率 200%
駐車場 有り カースペース
接道 東7.2m
権利 所有権
私道面積 無し
セットバック 無し
建物構造 木造
建物階数 2階
築年月 2026/04
入居日 2026/05
建築確認番号 第R07SHC124886号
都市計画 市街化区域
取引態様 仲介
物件番号 48190-1
設備 個別LPG、公営水道、下水、吹き抜け、外壁サイディング、駐車場2台以上、緑豊かな住宅地、閑静な住宅地、前道6m以上、公園5分以内、コンビニ5分以内、対面キッチン、システムキッチン、ガス3口、カウンターキッチン、対面キッチン、食器洗浄機、勝手口、I型キッチン、ユニットバス、追い焚き、浴室乾燥機、ウォシュレット、トイレ2ヶ所、浴室に窓、暖房便座、浴室暖房、バルコニー、南面バルコニー、2階建、LDK20畳以上、和室、全室2面採光、フローリング、リビング階段、クローゼット、収納、床下収納、下駄箱、全居室収納、有線放送、シャンプドレッサー付き、モニタ付きインターフォン、全居室複層ガラスか複層サッシ、24時間換気システム、建物10年保証
特記事項 不整形地 宅地造成工事規制区域 高度地区 準防火地域 日影制限 敷地面積最低限度 建物高さ10m以下 建築基準法第22条による区域 敷地面積に協定道路0.93平米含 不整形地:有/宅地造成工事規制区域:有/高度地区:有/準防火地域:有/日影制限:有/敷地面積最低限度:有/高さ限度:有/建築基準法第22条による区域 敷地面積に協定道路0.93平米含。 /
備考 京急線「金沢文庫」駅利用。全室2面採光なので、明るく通風良好なお住まいです。リビングは開放的な吹抜け。食洗機・浴室乾燥機・ペアガラス他設備充実。