新築一戸建
京浜急行本線 神奈川新町
京浜急行本線 神奈川新町駅 徒歩 10分 この駅が最寄り駅の物件一覧を見る
東急東横線 東白楽駅 徒歩 14分
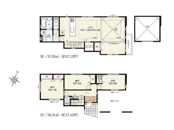
3駅3路線利用可能 床暖房付の約25帖LDKは勾配天井リビングで、開放感があります

| 学区 |
浦島小学校 →この学区の物件一覧を見る 浦島丘中学校 →この学区の物件一覧を見る |
|---|---|
| 用途地域 | 第二種中高層住居専用地域 |
| 地目 | 宅地 |
| 建ぺい率 | 70% / 80% |
| 容積率 | 150% / 200% |
| 駐車場 | 有り ビルトイン車庫 |
| 接道 | 北東4m |
| 権利 | 所有権 |
| 私道面積 | 有り 7.4m² |
|---|---|
| セットバック | 無し |
| 建物構造 | 木造 |
| 建物階数 | 2階 |
| 築年月 | 2026/05 |
| 入居日 | 2026/06 |
| 建築確認番号 | 第25UDI1W建11004 |
| 都市計画 | 市街化区域 |
| 取引態様 | 仲介 |
| 物件番号 | P1170 |
|---|---|
| 設備 | 都市ガス、公営水道、下水、省エネルギー対策、ビルトインガレージ、閑静な住宅地、都市近郊、地盤調査済、市街地が近い、スーパーが近い(10分以内)、2沿線以上利用可、総合病院徒歩10分以内、小学校徒歩10分以内、中学校徒歩10分以内、公園5分以内、コンビニ5分以内、ウォークインクローゼット、対面キッチン、都市ガス、システムキッチン、対面キッチン、食器洗浄機、浄水器、ユニットバス、追い焚き、浴室乾燥機、ウォシュレット、オートバス付き、トイレ2ヶ所、浴室1坪以上、浴室に窓、暖房便座、セカンド洗面台、浴室暖房、バルコニー、2階建、LDK20畳以上、省エネ給湯器、採光3面、東南向き、フローリング、天井高2.5m以上、リビング階段、クローゼット、ウォークインクローゼット、収納、床下収納、下駄箱、全居室収納、シャンプドレッサー付き、フラット35Sに対応、年内入居可、モニタ付きインターフォン、ペアガラス、火災警報器、通風良好、陽当り良好、24時間換気システム、建物10年保証、勾配天井 |
| 特記事項 | 建物面積にビルトイン車庫面積15.12平米含む 不整形地:有/航空法:有/宅地造成工事規制区域:有/高度地区:有/準防火地域:有/日影制限:有/緑化地域 間取Sは納戸 前面道路は一部私道あり。 / |
| 備考 | 3駅3路線利用可能 床暖房付の約25帖LDKは勾配天井リビングで、開放感があります |