新築一戸建
横浜線 大口
横浜線 大口駅 徒歩 18分 この駅が最寄り駅の物件一覧を見る
京浜東北線 鶴見駅 バス停「 白幡」まで バス利用 15分 徒歩 2分
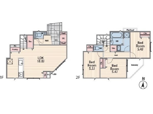
南東道路で日当たり良好 収納たっぷり!リビング収納×2 大容量パントリー シューズイン 省エネ住宅

| 学区 |
寺尾小学校 →この学区の物件一覧を見る 錦台中学校 →この学区の物件一覧を見る |
|---|---|
| 用途地域 | 第二種中高層住居専用地域 |
| 地目 | |
| 建ぺい率 | 60% |
| 容積率 | 150% |
| 駐車場 | 有り カースペース |
| 接道 | 南東4m |
| 権利 | 所有権 |
| 私道面積 | 無し |
|---|---|
| セットバック | 無し |
| 建物構造 | 木造 |
| 建物階数 | 2階 |
| 築年月 | 2025/12 |
| 入居日 | 2026/01 |
| 建築確認番号 | 確01213H |
| 都市計画 | 市街化区域 |
| 取引態様 | 仲介 |
| 物件番号 | P1021-2 |
|---|---|
| 設備 | 都市ガス、公営水道、下水、宅配ロッカー、省エネルギー対策、駐車場1台、閑静な住宅地、都市近郊、地盤調査済、市街地が近い、周辺交通量少なめ、スーパーが近い(10分以内)、始発駅、2沿線以上利用可、保育施設・幼稚園5分以内、公園5分以内、コンビニ5分以内、シューズインクローク、対面キッチン、パントリー、都市ガス、システムキッチン、対面キッチン、浄水器、パントリー(食器・食品の収納庫)、ユニットバス、追い焚き、浴室乾燥機、ウォシュレット、オートバス付き、トイレ2ヶ所、浴室1坪以上、浴室に窓、暖房便座、浴室暖房、バルコニー、2階建、LDK18畳以上、南向き、全室2面採光、フローリング、リビング階段、クローゼット、収納、下駄箱、全居室収納、洗面室収納、シューズインクローク、シャンプドレッサー付き、フラット35Sに対応、年度内入居可、モニタ付きインターフォン、ペアガラス、火災警報器、通風良好、陽当り良好、24時間換気システム、建物10年保証 |
| 特記事項 | 航空法:有/宅地造成工事規制区域:有/高度地区:有/準防火地域:有/日影制限:有/敷地内段差:有/緑化地域 横浜市建築基準条例第3条による制限有。 / |
| 備考 | 南東道路で日当たり良好 収納たっぷり!リビング収納×2 大容量パントリー シューズイン 省エネ住宅 |