横浜の一戸建てや土地を探すなら【ホームタウンよこはま】 横浜市泉区 一戸建て 新築 今週末モデルハウス見学会開催中!「いずみ野」駅利用 新築一戸建て 全室南向き

新築一戸建

いずみ野線 いずみ野

今週末モデルハウス見学会開催中!「いずみ野」駅利用 新築一戸建て 全室南向き

価格
5,590万円
所在地
横浜市泉区 上飯田町 このエリアの物件一覧を見る
交通

いずみ野線 いずみ野駅 バス停「 ひなた山バザール前」まで バス利用 9分 徒歩 3分 この駅が最寄り駅の物件一覧を見る

ブルーライン 立場駅 バス停「 ひなた山バザール前」まで バス利用 18分 徒歩 3分

土地面積
165.17m²
建物面積
102.43m²
間取り
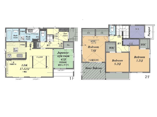
4LDK

相鉄線「いずみ野」駅利用。緑豊かで、閑静な住環境。南側、幅員6.5mの道路に接道。カースペース2台駐車可能。食洗器他設備充実。

  • 間取り

    間取図
  • 区画図

    区画図
  •  

    準備中
  •  

    準備中

物件周辺マップ

本物件最寄り駅から 通勤・通学で利用する駅からの所要時間

利用駅 駅まで

利用駅 駅まで

所要時間は 分です

会員登録し、利用駅情報を記入されますと、全ての物件で自動的に所要時間が表示され大変便利です。

会員登録はこちら

※既に会員の方で、利用駅情報が未記入の場合はマイページから情報をご記入ください。

※未だ会員登録をされていない方は、利用駅をご記入ください。

ローンシミュレーション

この物件の月々のお支払額

ボーナス時お支払額(×年2回)

年収に対する返済比率で安全性をチェック

※会員登録し、詳細情報を記入されますと、全ての物件で自動的に金額が表示され、大変便利です。

※未だ会員登録をされていない方は、下記チェック欄をご記入ください。

※上記計算は物件価格 5,590万円+諸経費 8%込みの金額による結果となります。

※返済金額はあくまでも目安です。

お客様の条件から シミュレーションするには

会員登録してローン情報を入力しておくと

全ての物件に対してローンシミュレーションを表示できます

会員情報にシミュレーション条件が未登録のお客様

マイページからシミュレーション条件を登録する

ゲストとしてシミュレーションするお客様

ローンシミュレーションを入力する↓
金利

変動金利と固定金利の比較

金利優遇について

ボーナス払い(年2回)
   

ボーナス払いを設定する人って、実際どのくらいいるの?

ボーナス払いの設定の目安は?

返済年数
       

返済年数の決めかたを教えてください。

頭金
   

頭金の目安は?

頭金は多い方がよいのですか?

頭金なしで購入するのと、頭金を貯金してからとではどちらが良いのですか?

年収
万円

返済比率の決めかたを教えてください。

詳細概要

学区

瀬谷さくら小学校 →この学区の物件一覧を見る

南瀬谷中学校 →この学区の物件一覧を見る

用途地域 第一種低層住居専用地域
地目 宅地
建ぺい率 50%
容積率 80%
駐車場 有り カースペース
接道 南6.5m
権利 所有権
私道面積 無し
セットバック 無し
建物構造 木造
建物階数 2階
築年月 2026/05
入居日 2026/06
建築確認番号 第R08SHC100454号
都市計画 市街化区域
取引態様 仲介
物件番号 48679
設備 都市ガス、公営水道、下水、駐車場2台以上、緑豊かな住宅地、閑静な住宅地、南側道路面す、前道6m以上、ウォークインクローゼット、対面キッチン、都市ガス、システムキッチン、対面キッチン、食器洗浄機、I型キッチン、ユニットバス、追い焚き、トイレ2ヶ所、浴室に窓、バルコニー、南面バルコニー、2階建、LDK15畳以上、全室南向き、フローリング、クローゼット、ウォークインクローゼット、収納、床下収納、下駄箱、シャンプドレッサー付き、モニタ付きインターフォン、インターフォン、24時間換気システム、建物10年保証、勾配天井
特記事項 宅地造成工事規制区域 高度地区 日影制限 敷地面積最低限度 建物高さ10m以下 建築基準法第22条区域 日向山地区地区計画 建物面積にインナーバルコニー1.83平米含 宅地造成工事規制区域:有/高度地区:有/日影制限:有/敷地面積最低限度:有/高さ限度:有/建築基準法第22条区域 日向山地区地区計画 建物面積にインナーバルコニー1.83平米含。 /
備考 相鉄線「いずみ野」駅利用。緑豊かで、閑静な住環境。南側、幅員6.5mの道路に接道。カースペース2台駐車可能。食洗器他設備充実。