新築一戸建
ブルーライン 立場
ブルーライン 立場駅 徒歩 12分 この駅が最寄り駅の物件一覧を見る
いずみ野線 いずみ中央駅 徒歩 21分
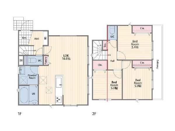
地下鉄BL「立場」駅から徒歩12分。北東角地。多面採光で通風良好。収納に心強いパントリー完備。全居室収納有。ワイドバルコニー付き。

| 学区 |
下和泉小学校 →この学区の物件一覧を見る 泉が丘中学校 →この学区の物件一覧を見る |
|---|---|
| 用途地域 | 第一種低層住居専用地域 |
| 地目 | 宅地 |
| 建ぺい率 | 50% |
| 容積率 | 100% |
| 駐車場 | 有り カースペース |
| 接道 | 北3.8m、東4.5m |
| 権利 | 所有権 |
| 私道面積 | 無し |
|---|---|
| セットバック | 無し |
| 建物構造 | 木造 |
| 建物階数 | 2階 |
| 築年月 | 2026/03 |
| 入居日 | 2026/04 |
| 建築確認番号 | 第25KAK建確01608号 |
| 都市計画 | 市街化区域 |
| 取引態様 | 仲介 |
| 物件番号 | 48307 |
|---|---|
| 設備 | 都市ガス、公営水道、下水、駐車場1台、緑豊かな住宅地、閑静な住宅地、角地、スーパーが近い(10分以内)、2沿線以上利用可、中学校徒歩10分以内、保育施設・幼稚園5分以内、公園5分以内、対面キッチン、パントリー、都市ガス、システムキッチン、ガス3口、対面キッチン、I型キッチン、パントリー(食器・食品の収納庫)、ユニットバス、追い焚き、ウォシュレット、トイレ2ヶ所、浴室に窓、暖房便座、バルコニー、ワイドバルコニー、2階建、LDK15畳以上、採光3面、全室2面採光、フローリング、クローゼット、収納、床下収納、下駄箱、全居室収納、シャンプドレッサー付き、フラット35Sに対応、モニタ付きインターフォン、24時間換気システム、建物10年保証 |
| 特記事項 | 不整形地 隅切り 宅地造成工事規制区域 高度地区 準防火地域 日影制限 敷地面積最低限度 建物高さ10m以下 建築基準法第22条区域 過小宅地 不整形地:有/隅切り:有/宅地造成工事規制区域:有/高度地区:有/準防火地域:有/日影制限:有/敷地面積最低限度:有/高さ限度:有/建築基準法第22条区域 過小宅地。 / |
| 備考 | 地下鉄BL「立場」駅から徒歩12分。北東角地。多面採光で通風良好。収納に心強いパントリー完備。全居室収納有。ワイドバルコニー付き。 |