横浜の一戸建てや土地を探すなら【ホームタウンよこはま】 横浜市泉区 一戸建て 新築 建物完成しました! 今週末内覧会開催中!「中田」駅徒歩9分 新築一戸建て(2)カースペース2台

新築一戸建

ブルーライン 中田

建物完成しました! 今週末内覧会開催中!「中田」駅徒歩9分 新築一戸建て(2)カースペース2台

価格
5,580万円
所在地
横浜市泉区 中田東4丁目 このエリアの物件一覧を見る
交通

ブルーライン 中田駅 徒歩 9分 この駅が最寄り駅の物件一覧を見る

ブルーライン 踊場駅 徒歩 19分

土地面積
101.79m²
建物面積
96.26m²
間取り
4LDK

地下鉄BL「中田」駅から徒歩9分。カースペース2台駐車可能。全居室2面採光。食洗機他、設備充実。WIC・SIC・パントリー完備。

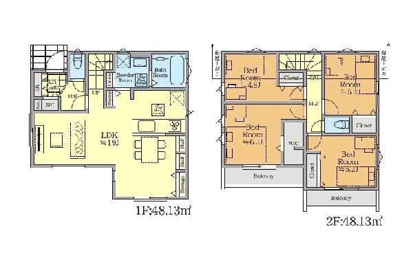
  • 間取り

    間取り:2号棟間取図
  • 区画図

    区画図
  •  

    準備中
  •  

    準備中

物件周辺マップ

本物件最寄り駅から 通勤・通学で利用する駅からの所要時間

利用駅 駅まで

利用駅 駅まで

所要時間は 分です

会員登録し、利用駅情報を記入されますと、全ての物件で自動的に所要時間が表示され大変便利です。

会員登録はこちら

※既に会員の方で、利用駅情報が未記入の場合はマイページから情報をご記入ください。

※未だ会員登録をされていない方は、利用駅をご記入ください。

ローンシミュレーション

この物件の月々のお支払額

ボーナス時お支払額(×年2回)

年収に対する返済比率で安全性をチェック

※会員登録し、詳細情報を記入されますと、全ての物件で自動的に金額が表示され、大変便利です。

※未だ会員登録をされていない方は、下記チェック欄をご記入ください。

※上記計算は物件価格 5,580万円+諸経費 8%込みの金額による結果となります。

※返済金額はあくまでも目安です。

お客様の条件から シミュレーションするには

会員登録してローン情報を入力しておくと

全ての物件に対してローンシミュレーションを表示できます

会員情報にシミュレーション条件が未登録のお客様

マイページからシミュレーション条件を登録する

ゲストとしてシミュレーションするお客様

ローンシミュレーションを入力する↓
金利

変動金利と固定金利の比較

金利優遇について

ボーナス払い(年2回)
   

ボーナス払いを設定する人って、実際どのくらいいるの?

ボーナス払いの設定の目安は?

返済年数
       

返済年数の決めかたを教えてください。

頭金
   

頭金の目安は?

頭金は多い方がよいのですか?

頭金なしで購入するのと、頭金を貯金してからとではどちらが良いのですか?

年収
万円

返済比率の決めかたを教えてください。

詳細概要

学区

東中田小学校 →この学区の物件一覧を見る

中田中学校 →この学区の物件一覧を見る

用途地域 第一種低層住居専用地域
地目 宅地
建ぺい率 50%
容積率 100%
駐車場 有り カースペース
接道 北西4m
権利 所有権
私道面積 有り 57.24m²   1/2
セットバック 無し
建物構造 木造
建物階数 2階
築年月 2025/09
入居日 即時
建築確認番号
都市計画 市街化区域
取引態様 仲介
物件番号 47803-2
設備 都市ガス、公営水道、下水、駐車場2台以上、緑豊かな住宅地、閑静な住宅地、スーパーが近い(10分以内)、2沿線以上利用可、小学校徒歩10分以内、保育施設・幼稚園5分以内、公園5分以内、シューズインクローク、ウォークインクローゼット、対面キッチン、パントリー、都市ガス、システムキッチン、ガス3口、対面キッチン、食器洗浄機、I型キッチン、パントリー(食器・食品の収納庫)、ユニットバス、追い焚き、浴室乾燥機、ウォシュレット、トイレ2ヶ所、浴室1坪以上、浴室に窓、暖房便座、浴室暖房、バルコニー、南面バルコニー、2階建、LDK18畳以上、全室2面採光、フローリング、リビング階段、クローゼット、ウォークインクローゼット、収納、床下収納、下駄箱、全居室収納、シューズインクローク、シャンプドレッサー付き、フラット35Sに対応、モニタ付きインターフォン、24時間換気システム、建物10年保証
特記事項 建築基準法第22条区域 宅地造成工事規制区域 高度地区 準防火地域 日影制限 敷地面積最低限度 建物高さ10m以下 建築基準法第22条区域 /宅地造成工事規制区域:有/高度地区:有/準防火地域:有/日影制限:有/敷地面積最低限度:有/高さ限度:有。 /
備考 地下鉄BL「中田」駅から徒歩9分。カースペース2台駐車可能。全居室2面採光。食洗機他、設備充実。WIC・SIC・パントリー完備。