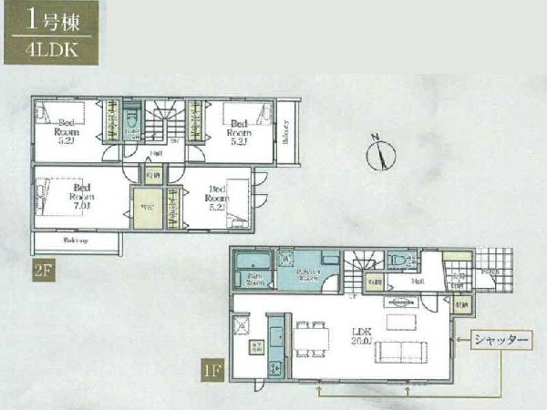
新築一戸建
小田急多摩線 栗平
小田急多摩線 栗平駅 徒歩 21分 この駅が最寄り駅の物件一覧を見る
京王相模原線 稲城駅 バス停「 平尾浄水場」まで バス利用 18分 徒歩 4分
カースペース2台 ZEH水準に適合した高断熱・省エネ住宅 大きな公園も近く、ファミリー層に嬉しい住環境

| 学区 |
稲城市立平尾小学校 →この学区の物件一覧を見る 稲城市立稲城第二中学校 →この学区の物件一覧を見る |
|---|---|
| 用途地域 | 第一種低層住居専用地域 |
| 地目 | 宅地 |
| 建ぺい率 | 40% |
| 容積率 | 80% |
| 駐車場 | 有り カースペース |
| 接道 | 南東9.3m |
| 権利 | 所有権 |
| 私道面積 | 無し |
|---|---|
| セットバック | 無し |
| 建物構造 | 木造 |
| 建物階数 | 2階 |
| 築年月 | 2026/03 |
| 入居日 | 2026/04 |
| 建築確認番号 | 第25UDI1W建07839号 |
| 都市計画 | 市街化区域 |
| 取引態様 | 仲介 |
| 物件番号 | A2379-1 |
|---|---|
| 設備 | 都市ガス、公営水道、下水、防犯シャッター、省エネルギー対策、駐車場2台以上、緑豊かな住宅地、都市近郊、地盤調査済、前道6m以上、市街地が近い、隣家との間隔が大きい、整備された歩道、ゴルフ場が近い、スーパーが近い(10分以内)、2沿線以上利用可、小学校徒歩10分以内、中学校徒歩10分以内、公園5分以内、ウォークインクローゼット、対面キッチン、都市ガス、システムキッチン、ガス3口、対面キッチン、食器洗浄機、浄水器、ユニットバス、追い焚き、浴室乾燥機、ウォシュレット、オートバス付き、トイレ2ヶ所、浴室1坪以上、浴室に窓、暖房便座、浴室暖房、バルコニー、バルコニー2面、南面バルコニー、2階建、LDK20畳以上、省エネ給湯器、採光2面、全室2面採光、フローリング、全室フローリング、リビング階段、クローゼット、ウォークインクローゼット、収納、床下収納、下駄箱、全居室収納、シャンプドレッサー付き、フラット35Sに対応、年内入居可、モニタ付きインターフォン、ペアガラス、火災警報器、通風良好、陽当り良好、24時間換気システム、建物10年保証 |
| 特記事項 | 景観法:有/高度地区:有/日影制限:有/高さ限度:有/建築基準法22条による区域/上平尾地区地区計画/駐車は車種により2台可。 / |
| 備考 | カースペース2台 ZEH水準に適合した高断熱・省エネ住宅 大きな公園も近く、ファミリー層に嬉しい住環境 |