新築一戸建
小田急線 新百合ヶ丘
小田急線 新百合ヶ丘駅 徒歩 23分 この駅が最寄り駅の物件一覧を見る
京王相模原線 若葉台駅 バス停「 平尾」まで バス利用 21分 徒歩 6分
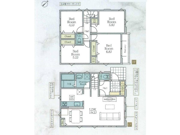
新百合ヶ丘駅より徒歩23分バス12分 駐車2台可能 1階リビング階に水回りを集約したスタンダードな4LDK

| 学区 |
稲城市立平尾小学校 →この学区の物件一覧を見る 稲城市立稲城第二中学校 →この学区の物件一覧を見る |
|---|---|
| 用途地域 | 第一種低層住居専用地域 |
| 地目 | 宅地 |
| 建ぺい率 | 40% |
| 容積率 | 80% |
| 駐車場 | 有り カースペース |
| 接道 | 北東4m |
| 権利 | 所有権 |
| 私道面積 | 無し |
|---|---|
| セットバック | 無し |
| 建物構造 | 木造 |
| 建物階数 | 2階 |
| 築年月 | 2026/03 |
| 入居日 | 即時 |
| 建築確認番号 | |
| 都市計画 | 市街化区域 |
| 取引態様 | 仲介 |
| 物件番号 | A2393-2 |
|---|---|
| 設備 | 都市ガス、公営水道、下水、省エネルギー対策、駐車場2台以上、整形地、緑豊かな住宅地、平坦地、都市近郊、地盤調査済、市街地が近い、隣家との間隔が大きい、周辺交通量少なめ、2沿線以上利用可、保育施設・幼稚園5分以内、公園5分以内、コンビニ5分以内、シューズインクローク、対面キッチン、都市ガス、整形地、システムキッチン、ガス3口、対面キッチン、食器洗浄機、浄水器、ユニットバス、追い焚き、浴室乾燥機、ウォシュレット、オートバス付き、トイレ2ヶ所、浴室1坪以上、浴室に窓、暖房便座、浴室暖房、バルコニー、2階建、LDK18畳以上、採光3面、全室2面採光、フローリング、全室フローリング、リビング階段、クローゼット、収納、床下収納、下駄箱、全居室収納、シューズインクローク、シャンプドレッサー付き、フラット35Sに対応、モニタ付きインターフォン、ペアガラス、火災警報器、通風良好、陽当り良好、24時間換気システム、建物10年保証 |
| 特記事項 | 建築基準法22条による区域/景観法:有/高度地区:有/日影制限:有/敷地内段差:有/高さ限度:有。 / |
| 備考 | 新百合ヶ丘駅より徒歩23分バス12分 駐車2台可能 1階リビング階に水回りを集約したスタンダードな4LDK |