新築一戸建
小田急線 新百合ヶ丘
小田急線 新百合ヶ丘駅 徒歩 22分 この駅が最寄り駅の物件一覧を見る
小田急多摩線 五月台駅 徒歩 16分
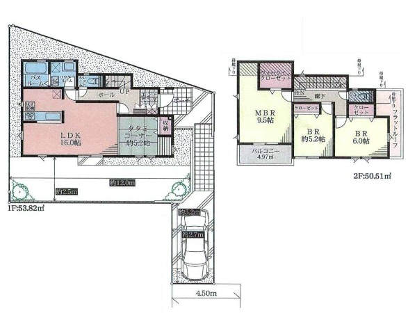
「新百合ヶ丘」駅徒歩22分 南ひな壇、全居室南向きで陽当たり良好 リビングには畳コーナーがあります

| 学区 |
稲城市立平尾小学校 →この学区の物件一覧を見る 稲城市立稲城第二中学校 →この学区の物件一覧を見る |
|---|---|
| 用途地域 | 第一種低層住居専用地域 |
| 地目 | 宅地 |
| 建ぺい率 | 40% |
| 容積率 | 80% |
| 駐車場 | 有り カースペース |
| 接道 | 南4.5m |
| 権利 | 所有権 |
| 私道面積 | 無し |
|---|---|
| セットバック | 無し |
| 建物構造 | 木造 |
| 建物階数 | 2階 |
| 築年月 | 2025/10 |
| 入居日 | 即時 |
| 建築確認番号 | 第KBI-YKH25-10-0789号 |
| 都市計画 | 市街化区域 |
| 取引態様 | 仲介 |
| 物件番号 | A1862-5 |
|---|---|
| 設備 | 都市ガス、公営水道、下水、駐車場1台、区画整理地内、閑静な住宅地、都市近郊、地盤調査済、南側道路面す、市街地が近い、海まで2km以内、周辺交通量少なめ、スーパーが近い(10分以内)、始発駅、公園5分以内、システムキッチン、ガス3口、対面キッチン、浄水器、ユニットバス、追い焚き、浴室乾燥機、ウォシュレット、トイレ2ヶ所、浴室に窓、暖房便座、バルコニー、パティオ、南面バルコニー、2階建、LDK20畳以上、採光3面、全室南向き、フローリング、クローゼット、ウォークインクローゼット、収納、床下収納、下駄箱、全居室収納、洗面室収納、シャンプドレッサー付き、庭、年内入居可、モニタ付きインターフォン、ペアガラス、火災警報器、陽当り良好、24時間換気システム、ウォークインクローゼット、対面キッチン、都市ガス、建物10年保証 |
| 特記事項 | 不整形地:有/景観法:有/高度地区:有/接道と段差:有/高さ限度:有/建築基準法第22条による区域 土地面積に路地状部分約14平米含む 間知擁壁下の土地利用に関する協定書有り。 / |
| 備考 | 「新百合ヶ丘」駅徒歩22分 南ひな壇、全居室南向きで陽当たり良好 リビングには畳コーナーがあります |