新築一戸建
小田急多摩線 栗平
小田急多摩線 栗平駅 徒歩 10分 この駅が最寄り駅の物件一覧を見る
京王相模原線 若葉台駅 徒歩 25分
全16棟の大型分譲地、駅徒歩10分の好立地に自然を感じる事出来る落ち着いた住環境。周辺にはお買物施設も充実

| 学区 |
稲城市立平尾小学校 →この学区の物件一覧を見る 稲城市立稲城第二中学校 →この学区の物件一覧を見る |
|---|---|
| 用途地域 | 第一種中高層住居専用地域 |
| 地目 | 宅地 |
| 建ぺい率 | 50% |
| 容積率 | 150% |
| 駐車場 | 有り カースペース |
| 接道 | 南西12m |
| 権利 | 所有権 |
| 私道面積 | 無し |
|---|---|
| セットバック | 無し |
| 建物構造 | 木造 |
| 建物階数 | 2階 |
| 築年月 | 2026/04 |
| 入居日 | 2026/05 |
| 建築確認番号 | 第25UDI1K建00351号 |
| 都市計画 | 市街化区域 |
| 取引態様 | 仲介 |
| 物件番号 | A1748-15 |
|---|---|
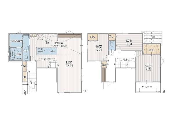
| 設備 | 都市ガス、公営水道、下水、吹き抜け、駐車場2台以上、整形地、閑静な住宅地、都市近郊、開発分譲地内、地盤調査済、南側道路面す、前道6m以上、市街地が近い、スーパーが近い(10分以内)、2沿線以上利用可、小学校徒歩10分以内、保育施設・幼稚園5分以内、公園5分以内、シューズインクローク、ウォークインクローゼット、対面キッチン、パントリー、都市ガス、整形地、システムキッチン、ガス3口、対面キッチン、食器洗浄機、浄水器、パントリー(食器・食品の収納庫)、ユニットバス、追い焚き、浴室乾燥機、ウォシュレット、オートバス付き、トイレ2ヶ所、浴室1坪以上、浴室に窓、暖房便座、バルコニー、ワイドバルコニー、南面バルコニー、2階建、LDK20畳以上、採光2面、南西向き、天井高2.5m以上、リビング階段、クローゼット、ウォークインクローゼット、収納、床下収納、下駄箱、全居室収納、シャンプドレッサー付き、モニタ付きインターフォン、ペアガラス、火災警報器、陽当り良好、24時間換気システム、建物10年保証 |
| 特記事項 | 景観法:有/宅地造成工事規制区域:有/高度地区:有/準防火地域:有/日影制限:有/敷地面積最低限度:有/高さ限度:有/駐車は車種により2台可、上平尾地区計画区域内。 / |
| 備考 | 全16棟の大型分譲地、駅徒歩10分の好立地に自然を感じる事出来る落ち着いた住環境。周辺にはお買物施設も充実 |