新築一戸建
相模鉄道線 和田町
相模鉄道線 和田町駅 徒歩 9分 この駅が最寄り駅の物件一覧を見る
ブルーライン 三ッ沢上町駅 バス停「 常盤園前」まで バス利用 6分 徒歩 4分
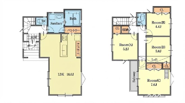
相鉄本線「和田町」駅徒歩9分。緑豊かで閑静な住宅地。4LDKのゆとりの間取り、全居室収納付き。食洗機、カップボード、パントリー、浴室暖房乾燥機、ロフト等設備充実。

| 学区 |
常盤台小学校 →この学区の物件一覧を見る 保土ケ谷中学校 →この学区の物件一覧を見る |
|---|---|
| 用途地域 | 第一種中高層住居専用地域 |
| 地目 | 宅地 |
| 建ぺい率 | 60% |
| 容積率 | 150% |
| 駐車場 | 有り カースペース |
| 接道 | 南西4m、北東3.6m |
| 権利 | 所有権 |
| 私道面積 | 有り 4.49m² |
|---|---|
| セットバック | 無し |
| 建物構造 | 木造 |
| 建物階数 | 2階 |
| 築年月 | 2026/04 |
| 入居日 | 2026/05 |
| 建築確認番号 | 第25KAK建確02295号 |
| 都市計画 | 市街化区域 |
| 取引態様 | 仲介 |
| 物件番号 | 48656 |
|---|---|
| 設備 | 都市ガス、公営水道、下水、駐車場1台、緑豊かな住宅地、閑静な住宅地、スーパーが近い(10分以内)、2沿線以上利用可、総合病院徒歩10分以内、小学校徒歩10分以内、公園5分以内、対面キッチン、パントリー、都市ガス、システムキッチン、ガス3口、対面キッチン、食器洗浄機、I型キッチン、パントリー(食器・食品の収納庫)、ユニットバス、追い焚き、浴室乾燥機、ウォシュレット、トイレ2ヶ所、浴室に窓、暖房便座、浴室暖房、バルコニー、2階建、ロフト、LDK18畳以上、採光2面、採光3面、フローリング、クローゼット、収納、下駄箱、屋根裏収納、全居室収納、シャンプドレッサー付き、フラット35Sに対応、モニタ付きインターフォン、インターフォン、24時間換気システム |
| 特記事項 | 不整形地 宅地造成工事規制区域 高度地区 準防火地域 日影制限 敷地内段差 接道と段差 建築基準法第22条区域 横浜市建築基準条例第3条による制限有 建物建築・再建築の際、防護壁の設置、高基礎、外壁後退等の対策が必要となる場合があります 傾斜地有 不整形地:有/宅地造成工事規制区域:有/高度地区:有/準防火地域:有/日影制限:有/敷地内段差:有/接道と段差:有/建築基準法第22条区域 横浜市建築基準条例第3条による制限有 建物建築・再建築の際、防護壁の設置、高基礎、外壁後退等の対策が必要となる場合があります 傾斜地有。 / |
| 備考 | 相鉄本線「和田町」駅徒歩9分。緑豊かで閑静な住宅地。4LDKのゆとりの間取り、全居室収納付き。食洗機、カップボード、パントリー、浴室暖房乾燥機、ロフト等設備充実。 |