新築一戸建
相模鉄道線 西谷
相模鉄道線 西谷駅 徒歩 12分 この駅が最寄り駅の物件一覧を見る
東海道本線 横浜駅 バス停「 川島町」まで バス利用 17分 徒歩 8分
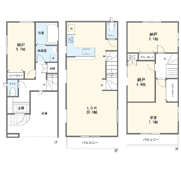
相鉄本線「西谷」駅から徒歩12分。プライバシーに配慮した2階リビング。ペアガラス他、設備充実。納戸もお部屋としてご利用いただけます。

| 学区 |
川島小学校 →この学区の物件一覧を見る 西谷中学校 →この学区の物件一覧を見る |
|---|---|
| 用途地域 | 第一種住居地域 |
| 地目 | 宅地 |
| 建ぺい率 | 60% |
| 容積率 | 200% |
| 駐車場 | 有り ビルトイン車庫 駐車場面積:12.78 |
| 接道 | 南5.5m |
| 権利 | 所有権 |
| 私道面積 | 無し |
|---|---|
| セットバック | 無し |
| 建物構造 | 木造 |
| 建物階数 | 3階 |
| 築年月 | 2026/05 |
| 入居日 | 2026/06 |
| 建築確認番号 | 第25KAK建確02903号 |
| 都市計画 | 市街化区域 |
| 取引態様 | 仲介 |
| 物件番号 | 47529-9 |
|---|---|
| 設備 | 都市ガス、公営水道、下水、ビルトインガレージ、駐車場1台、閑静な住宅地、南側道路面す、スーパーが近い(10分以内)、2沿線以上利用可、小学校徒歩10分以内、保育施設・幼稚園5分以内、公園5分以内、対面キッチン、都市ガス、システムキッチン、ガス3口、対面キッチン、L型キッチン、ユニットバス、追い焚き、浴室乾燥機、ウォシュレット、トイレ2ヶ所、浴室に窓、暖房便座、浴室暖房、バルコニー2面、南面バルコニー、3階建以上、LDK20畳以上、採光2面、採光3面、全室フローリング、リビング階段、クローゼット、収納、下駄箱、全居室収納、シャンプドレッサー付き、フラット35Sに対応、モニタ付きインターフォン、ペアガラス、全居室複層ガラスか複層サッシ、24時間換気システム、建物10年保証 |
| 特記事項 | 宅地造成工事規制区域 高度地区 準防火地域 日影制限 建築基準法第22条区域 建物面積に車庫面積12.78平米含 別途私道通行承諾書有り 宅地造成工事規制区域:有/高度地区:有/準防火地域:有/日影制限:有/建築基準法第22条区域 建物面積に車庫面積12.78平米含 別途私道通行承諾書有り。 / |
| 備考 | 相鉄本線「西谷」駅から徒歩12分。プライバシーに配慮した2階リビング。ペアガラス他、設備充実。納戸もお部屋としてご利用いただけます。 |