新築一戸建
横須賀線 保土ヶ谷
横須賀線 保土ヶ谷駅 バス停「 法泉下」まで バス利用 13分 徒歩 2分 この駅が最寄り駅の物件一覧を見る
相模鉄道線 二俣川駅 バス停「 法泉下」まで バス利用 29分 徒歩 2分
JR「保土ヶ谷」駅利用。閑静な住環境。ご家族との会話が弾む対面キッチンのLDK。食洗機・浴室乾燥機他設備充実のお住まいです。

| 学区 |
初音が丘小学校 →この学区の物件一覧を見る 橘中学校 →この学区の物件一覧を見る |
|---|---|
| 用途地域 | 第一種住居地域 |
| 地目 | 宅地 |
| 建ぺい率 | 60% |
| 容積率 | 160% |
| 駐車場 | 有り カースペース |
| 接道 | 南4m |
| 権利 | 所有権 |
| 私道面積 | 無し |
|---|---|
| セットバック | 無し |
| 建物構造 | 木造 |
| 建物階数 | 2階 |
| 築年月 | 2026/01 |
| 入居日 | 2026/02 |
| 建築確認番号 | 第2025SBC-確00335H号 |
| 都市計画 | 市街化区域 |
| 取引態様 | 仲介 |
| 物件番号 | 48133-2 |
|---|---|
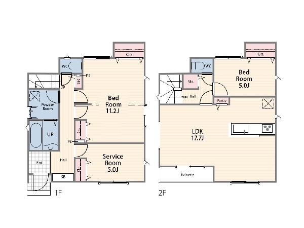
| 設備 | 都市ガス、公営水道、下水、駐車場2台以上、緑豊かな住宅地、閑静な住宅地、南側道路面す、2沿線以上利用可、保育施設・幼稚園5分以内、対面キッチン、パントリー、都市ガス、システムキッチン、ガス3口、対面キッチン、食器洗浄機、I型キッチン、パントリー(食器・食品の収納庫)、ユニットバス、浴室乾燥機、ウォシュレット、トイレ2ヶ所、浴室に窓、バルコニー、南面バルコニー、2階建、LDK15畳以上、全室2面採光、フローリング、クローゼット、収納、床下収納、下駄箱、全居室収納、シューズインクローク、シャンプドレッサー付き、モニタ付きインターフォン、24時間換気システム、建物10年保証 |
| 特記事項 | 不整形地 宅地造成工事規制区域 高度地区 準防火地域 日影制限 建築基準法第22条区域 別途私道持分1号棟から4号棟で34.29平米有 一部協定通路 不整形地:有/宅地造成工事規制区域:有/高度地区:有/準防火地域:有/日影制限:有/建築基準法第22条区域 別途私道持分1号棟から4号棟で34.29平米有。 / |
| 備考 | JR「保土ヶ谷」駅利用。閑静な住環境。ご家族との会話が弾む対面キッチンのLDK。食洗機・浴室乾燥機他設備充実のお住まいです。 |