中古一戸建
小田急線 読売ランド前
小田急線 読売ランド前駅 徒歩 23分 この駅が最寄り駅の物件一覧を見る
小田急線 百合ヶ丘駅 徒歩 25分
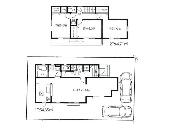
H27年築 リフォーム済2階建 LDK広々23帖 全室東南向き・6帖以上 駐車は車種により2台可

| 学区 |
千代ヶ丘小学校 →この学区の物件一覧を見る 金程中学校 →この学区の物件一覧を見る |
|---|---|
| 用途地域 | 第一種低層住居専用地域 |
| 地目 | 宅地 |
| 建ぺい率 | 40% |
| 容積率 | 80% |
| 駐車場 | 有り カースペース |
| 接道 | 北東6.1m |
| 権利 | 所有権 |
| 私道面積 | 無し |
|---|---|
| セットバック | 無し |
| 建物構造 | 木造 |
| 建物階数 | 2階 |
| 築年月 | 2015/01 |
| 入居日 | 相談 |
| 建築確認番号 | |
| 都市計画 | 市街化区域 |
| 取引態様 | 仲介 |
| 物件番号 | A1753 |
|---|---|
| 設備 | 都市ガス、公営水道、下水、駐車場2台以上、整形地、緑豊かな住宅地、閑静な住宅地、都市近郊、前道6m以上、市街地が近い、周辺交通量少なめ、公園5分以内、システムキッチン、ガス3口、対面キッチン、食器洗浄機、浄水器、I型キッチン、ユニットバス、ウォシュレット、トイレ2ヶ所、浴室に窓、セカンド洗面台、バルコニー、テラス、内装リフォーム、外装リフォーム、2階建、全居室6畳以上、LDK20畳以上、採光2面、東南向き、全室東南向き、クローゼット、収納、下駄箱、全居室収納、シャンプドレッサー付き、庭、モニタ付きインターフォン、陽当り良好、対面キッチン、都市ガス、整形地 |
| 特記事項 | 壁面後退:有/景観法:有/宅地造成工事規制区域:有/高度地区:有/日影制限:有/敷地面積最低限度:有/高さ限度:有/建築基準法第22条による区域 駐車は車種により2台可。 / |
| 備考 | H27年築 リフォーム済2階建 LDK広々23帖 全室東南向き・6帖以上 駐車は車種により2台可 |