新築一戸建
相模鉄道線 希望ヶ丘
相模鉄道線 希望ヶ丘駅 徒歩 11分 この駅が最寄り駅の物件一覧を見る
相模鉄道線 二俣川駅 徒歩 19分
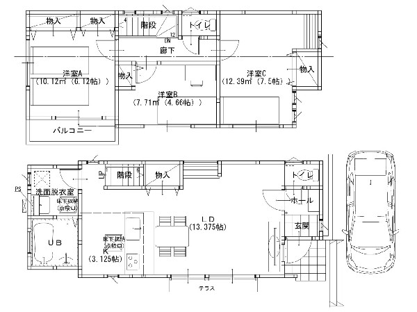
相鉄線「希望ケ丘」駅から徒歩11分。LDKは対面キッチン・リビングイン階段なので、ご家族とのコミュニケーションがとりやすいですね。南面バルコニー付。

| 学区 |
中尾小学校 →この学区の物件一覧を見る 希望ケ丘中学校 →この学区の物件一覧を見る |
|---|---|
| 用途地域 | 第一種低層住居専用地域 |
| 地目 | 宅地 |
| 建ぺい率 | 50% |
| 容積率 | 100% |
| 駐車場 | 有り カースペース |
| 接道 | 北東6.5m |
| 権利 | 所有権 |
| 私道面積 | 無し |
|---|---|
| セットバック | 無し |
| 建物構造 | 木造 |
| 建物階数 | 2階 |
| 築年月 | 2025/08 |
| 入居日 | 即時 |
| 建築確認番号 | |
| 都市計画 | 市街化区域 |
| 取引態様 | 仲介 |
| 物件番号 | 47542-1 |
|---|---|
| 設備 | 都市ガス、公営水道、下水、駐車場1台、緑豊かな住宅地、閑静な住宅地、前道6m以上、小学校徒歩10分以内、保育施設・幼稚園5分以内、公園5分以内、対面キッチン、都市ガス、システムキッチン、ガス3口、対面キッチン、食器洗浄機、浄水器、I型キッチン、ユニットバス、追い焚き、浴室乾燥機、ウォシュレット、トイレ2ヶ所、浴室に窓、暖房便座、バルコニー、南面バルコニー、2階建、LDK15畳以上、採光2面、全室東南向き、フローリング、リビング階段、クローゼット、収納、床下収納、下駄箱、全居室収納、シャンプドレッサー付き、フラット35Sに対応、モニタ付きインターフォン、ペアガラス、建物10年保証 |
| 特記事項 | 崖下につき建築制限 崖上につき建築制限 宅地造成工事規制区域 高度地区 準防火地域 特別用途制限地域 日影制限 敷地内段差 敷地面積最低限度 建物高さ10m以下建築基準法第22条による区域 建物建築・再 建築の際、深基礎、基礎杭、擁壁の補修・再構築、外壁後退等の対策が必要となる場合有。建物建築・再建築の際、防護壁の設置、高基礎、外壁後退等の対策が必要となる場合有。傾斜地含 過小宅地 崖下につき建築制限:有/崖上につき建築制限:有/宅地造成工事規制区域:有/高度地区:有/準防火地域:有/特別用途制限地域:有/日影制限:有/敷地内段差:有/敷地面積最低限度:有/高さ限度:有/建築基準法第22条による区域 建物建築・再建築の際、深基礎、基礎杭、擁壁の補修・再構築、外壁後退等の対策が必要となる場合有。建物建築・再建築の際、防護壁の設置、高基礎、外壁後退等の対 |
| 備考 | 相鉄線「希望ケ丘」駅から徒歩11分。LDKは対面キッチン・リビングイン階段なので、ご家族とのコミュニケーションがとりやすいですね。南面バルコニー付。 |