新築一戸建
田園都市線 市が尾
田園都市線 市が尾駅 徒歩 24分 この駅が最寄り駅の物件一覧を見る
グリーンライン 川和町駅 徒歩 24分
「市が尾」駅、「川和町」駅徒歩圏 洋風和室がリビングに隣接 駐車4台可能、前面道路6mで運転ラクラク

| 学区 |
東市ヶ尾小学校 →この学区の物件一覧を見る 市ヶ尾中学校 →この学区の物件一覧を見る |
|---|---|
| 用途地域 | 第一種低層住居専用地域 |
| 地目 | 宅地 |
| 建ぺい率 | 40% |
| 容積率 | 80% |
| 駐車場 | 有り カースペース |
| 接道 | 北6.5m |
| 権利 | 所有権 |
| 私道面積 | 無し |
|---|---|
| セットバック | 無し |
| 建物構造 | 木造 |
| 建物階数 | 2階 |
| 築年月 | 2026/02 |
| 入居日 | 即時 |
| 建築確認番号 | |
| 都市計画 | 市街化区域 |
| 取引態様 | 仲介 |
| 物件番号 | A2368 |
|---|---|
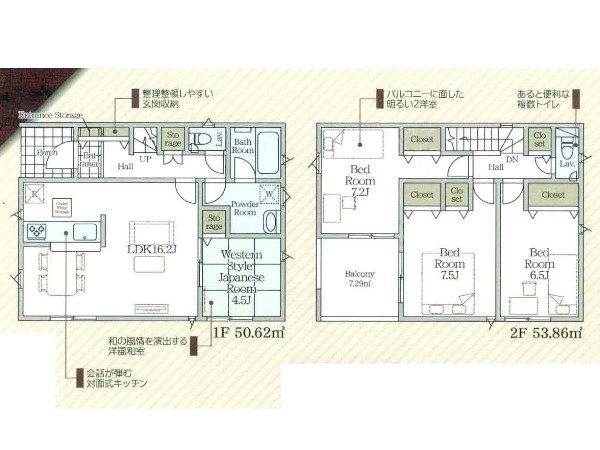
| 設備 | 都市ガス、公営水道、下水、制震構造、シックハウス対策、スレート葺、駐車場2台以上、整形地、閑静な住宅地、都市近郊、地盤調査済、前道6m以上、市街地が近い、周辺交通量少なめ、2沿線以上利用可、総合病院徒歩10分以内、小学校徒歩10分以内、保育施設・幼稚園5分以内、公園5分以内、コンビニ5分以内、対面キッチン、都市ガス、整形地、システムキッチン、ガス3口、対面キッチン、浄水器、ユニットバス、追い焚き、浴室乾燥機、ウォシュレット、トイレ2ヶ所、浴室に窓、暖房便座、浴室暖房、バルコニー、ルーフバルコニー、南面バルコニー、2階建、LDK15畳以上、和室、人感照明センサー、採光2面、全室南向き、全室2面採光、フローリング、クローゼット、収納、床下収納、下駄箱、全居室収納、シャンプドレッサー付き、フラット35Sに対応、年内入居可、モニタ付きインターフォン、ペアガラス、ディンプルキー、火災警報器、全居室複層ガラスか複層サッシ、陽当り良好、24時間換気システム、建物10年保証 |
| 特記事項 | 壁面後退:有/宅地造成工事規制区域:有/高度地区:有/日影制限:有/敷地面積最低限度:有/高さ限度:有/緑化地域/建築基準法第22条による区域/建物面積に別途ルーフバルコニー約7.29平米有/駐車は車種により4台可。 / |
| 備考 | 「市が尾」駅、「川和町」駅徒歩圏 洋風和室がリビングに隣接 駐車4台可能、前面道路6mで運転ラクラク |