中古一戸建
田園都市線 たまプラーザ
田園都市線 たまプラーザ駅 バス停「 荏子田二丁目」まで バス利用 8分 徒歩 4分 この駅が最寄り駅の物件一覧を見る
ブルーライン あざみ野駅 バス停「 荏子田二丁目」まで バス利用 9分 徒歩 4分
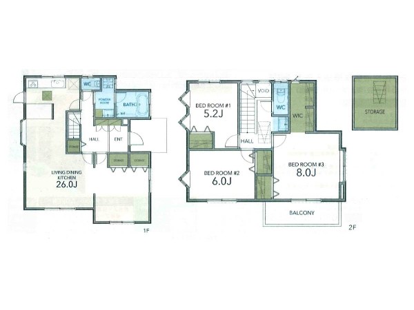
閑静な住宅地 内外装フルリノベーション戸建 敷地約59坪 LDKは26帖の大空間 収納たっぷり3LDK

| 学区 |
荏子田小学校 →この学区の物件一覧を見る あざみ野中学校 →この学区の物件一覧を見る |
|---|---|
| 用途地域 | 第一種低層住居専用地域 |
| 地目 | 宅地 |
| 建ぺい率 | 40% |
| 容積率 | 80% |
| 駐車場 | 有り ビルトイン車庫 |
| 接道 | 東12m |
| 権利 | 所有権 |
| 私道面積 | 無し |
|---|---|
| セットバック | 無し |
| 建物構造 | 木造 |
| 建物階数 | 2階 |
| 築年月 | 1989/06 |
| 入居日 | 相談 |
| 建築確認番号 | |
| 都市計画 | 市街化区域 |
| 取引態様 | 仲介 |
| 物件番号 | A2066 |
|---|---|
| 設備 | 都市ガス、公営水道、下水、駐車場1台、高台に立地、緑豊かな住宅地、閑静な住宅地、都市近郊、土地50坪以上、前道6m以上、市街地が近い、スーパーが近い(10分以内)、始発駅、2沿線以上利用可、小学校徒歩10分以内、保育施設・幼稚園5分以内、公園5分以内、ウォークインクローゼット、都市ガス、眺望良好、システムキッチン、食器洗浄機、浄水器、ユニットバス、追い焚き、ウォシュレット、トイレ2ヶ所、浴室1坪以上、浴室に窓、暖房便座、バルコニー、内外装リフォーム、2階建、LDK20畳以上、採光3面、全室2面採光、クローゼット、ウォークインクローゼット、収納、下駄箱、全居室収納、シャンプドレッサー付き、庭、通風良好、陽当り良好 |
| 特記事項 | 壁面後退:有/宅地造成工事規制区域:有/高度地区:有/日影制限:有/敷地内段差:有/敷地面積最低限度:有/高さ限度:有/緑化地域、建築基準法第22条区域、別途地下車庫有。 /内装リフォーム…2026年02月(キッチン、浴室、トイレ、洗面所、給湯器、壁、床、建具、玄関ドア交換) 外装リフォーム…2026年02月(その他 屋根・外壁塗装) |
| 備考 | 閑静な住宅地 内外装フルリノベーション戸建 敷地約59坪 LDKは26帖の大空間 収納たっぷり3LDK |