中古一戸建
東急東横線 菊名
東急東横線 菊名駅 バス停「 菊名記念病院前」まで バス利用 9分 徒歩 3分 この駅が最寄り駅の物件一覧を見る
京浜東北線 鶴見駅 バス停「 宝蔵院前」まで バス利用 13分 徒歩 3分
リフォーム済物件 開放感のある角地 徒歩圏内に生活利便施設充実! スーパー徒歩3分・コンビニ徒歩1分

| 学区 |
上寺尾小学校 →この学区の物件一覧を見る 生麦中学校 →この学区の物件一覧を見る |
|---|---|
| 用途地域 | 第二種中高層住居専用地域 |
| 地目 | 宅地 |
| 建ぺい率 | 60% |
| 容積率 | 150% |
| 駐車場 | 有り カースペース |
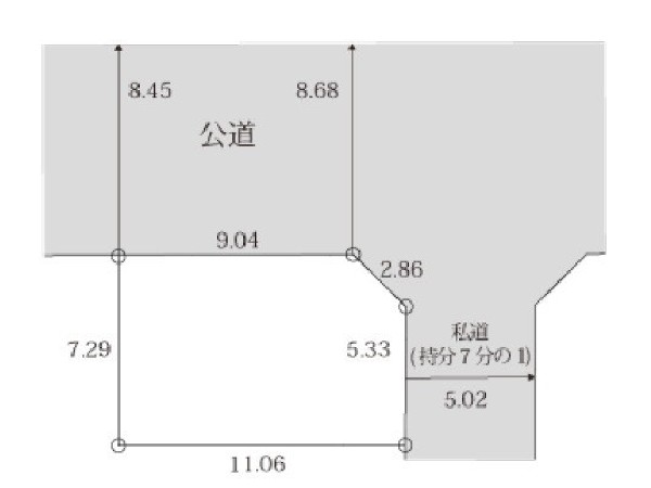
| 接道 | 北東8.4m、南東5m |
| 権利 | 所有権 |
| 私道面積 | 無し |
|---|---|
| セットバック | 無し |
| 建物構造 | 木造 |
| 建物階数 | 2階 |
| 築年月 | 2009/09 |
| 入居日 | 即時 |
| 建築確認番号 | |
| 都市計画 | 市街化区域 |
| 取引態様 | 仲介 |
| 物件番号 | P1119 |
|---|---|
| 設備 | 都市ガス、公営水道、下水、緑豊かな住宅地、閑静な住宅地、平坦地、角地、都市近郊、南側道路面す、前道6m以上、市街地が近い、隣家との間隔が大きい、周辺交通量少なめ、スーパーが近い(10分以内)、始発駅、2沿線以上利用可、小学校徒歩10分以内、保育施設・幼稚園5分以内、公園5分以内、コンビニ5分以内、都市ガス、システムキッチン、ユニットバス、追い焚き、浴室乾燥機、トイレ2ヶ所、浴室1坪以上、浴室に窓、暖房便座、バルコニー、2階建、採光3面、全室2面採光、フローリング、クローゼット、収納、床下収納、下駄箱、全居室収納、シャンプドレッサー付き、年度内入居可、モニタ付きインターフォン、火災警報器、通風良好、陽当り良好 |
| 特記事項 | 緑化地域 間取りSは納戸/不整形地:有/航空法:有/宅地造成工事規制区域:有/高度地区:有/準防火地域:有/日影制限:有/一部都市計画道路:有。 /内装リフォーム…2026年01月(キッチン、浴室、トイレ、給湯器、壁、床) |
| 備考 | リフォーム済物件 開放感のある角地 徒歩圏内に生活利便施設充実! スーパー徒歩3分・コンビニ徒歩1分 |