中古一戸建
南武線 久地
南武線 久地駅 徒歩 6分 この駅が最寄り駅の物件一覧を見る
田園都市線 高津駅 バス停「 久地駅前」まで バス利用 8分 徒歩 6分
駅より徒歩6分 トップライトから明るい日差しを取り込み、開放的な空間を演出 充実した収納スペース確保

| 学区 |
久地小学校 →この学区の物件一覧を見る 稲田中学校 →この学区の物件一覧を見る |
|---|---|
| 用途地域 | 準住居地域 |
| 地目 | 宅地 |
| 建ぺい率 | 60% |
| 容積率 | 160% |
| 駐車場 | 無し |
| 接道 | 北4m |
| 権利 | 所有権 |
| 私道面積 | 無し |
|---|---|
| セットバック | 無し |
| 建物構造 | 木造 |
| 建物階数 | 2階 |
| 築年月 | 1998/03 |
| 入居日 | 即時 |
| 建築確認番号 | |
| 都市計画 | 市街化区域 |
| 取引態様 | 仲介 |
| 物件番号 | A1010 |
|---|---|
| 設備 | 都市ガス、公営水道、下水、スレート葺、緑豊かな住宅地、閑静な住宅地、平坦地、都市近郊、市街地が近い、周辺交通量少なめ、スーパーが近い(10分以内)、駅まで平坦、始発駅、2沿線以上利用可、小学校徒歩10分以内、保育施設・幼稚園5分以内、コンビニ5分以内、都市ガス、システムキッチン、ガス2口、浄水器、ユニットバス、追い焚き、浴室乾燥機、ウォシュレット、浴室に窓、暖房便座、浴室暖房、バルコニー、内外装リフォーム、2階建、出窓、採光2面、全室2面採光、フローリング、全室フローリング、クローゼット、収納、下駄箱、全居室収納、モニタ付きインターフォン、通風良好、陽当り良好、24時間換気システム |
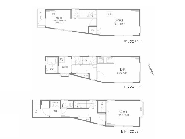
| 特記事項 | 間取りSは納戸/景観法:有/高度地区:有/準防火地域:有/日影制限:有/高さ限度:有。 /内装リフォーム…2025年02月(キッチン、浴室、トイレ、洗面所、壁、床、全室、スイッチコンセントなど) 外装リフォーム…2025年02月(外壁、屋根) |
| 備考 | 駅より徒歩6分 トップライトから明るい日差しを取り込み、開放的な空間を演出 充実した収納スペース確保 |