新築一戸建
田園都市線 鷺沼
田園都市線 鷺沼駅 バス停「 野川台西口」まで バス利用 8分 徒歩 5分 この駅が最寄り駅の物件一覧を見る
南武線 武蔵中原駅 バス停「 野川台公園前」まで バス利用 20分 徒歩 5分
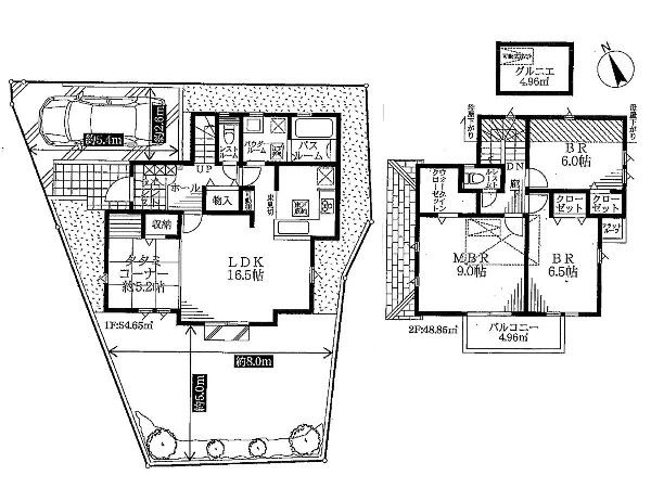
「鷺沼」駅利用 タタミコーナーのある居心地よいリビング 南側に広いお庭があり陽当たり良好です

| 学区 |
南野川小学校 →この学区の物件一覧を見る 野川中学校 →この学区の物件一覧を見る |
|---|---|
| 用途地域 | 第一種低層住居専用地域 |
| 地目 | 宅地 |
| 建ぺい率 | 50% |
| 容積率 | 80% |
| 駐車場 | 有り カースペース |
| 接道 | 西6m |
| 権利 | 所有権 |
| 私道面積 | 有り 180m² 1/7 |
|---|---|
| セットバック | 無し |
| 建物構造 | 木造 |
| 建物階数 | 2階 |
| 築年月 | 2025/11 |
| 入居日 | 2025/12 |
| 建築確認番号 | 第KBI-YKH25-10-1135号 |
| 都市計画 | 市街化区域 |
| 取引態様 | 仲介 |
| 物件番号 | A1826-4 |
|---|---|
| 設備 | 都市ガス、公営水道、下水、駐車場1台、閑静な住宅地、都市近郊、地盤調査済、前道6m以上、市街地が近い、隣家との間隔が大きい、周辺交通量少なめ、スーパーが近い(10分以内)、2沿線以上利用可、公園5分以内、コンビニ5分以内、ウォークインクローゼット、対面キッチン、都市ガス、システムキッチン、ガス3口、対面キッチン、L型キッチン、浄水器、ユニットバス、追い焚き、浴室乾燥機、ウォシュレット、トイレ2ヶ所、浴室に窓、暖房便座、バルコニー、テラス、南面バルコニー、2階建、全居室6畳以上、LDK20畳以上、屋根裏収納、採光3面、南向き、全室2面採光、クローゼット、ウォークインクローゼット、収納、床下収納、下駄箱、屋根裏収納、全居室収納、洗面室収納、シャンプドレッサー付き、専用庭、南庭、庭10坪以上、年内入居可、モニタ付きインターフォン、ペアガラス、火災警報器、通風良好、陽当り良好、24時間換気システム、建物10年保証 |
| 特記事項 | 建築基準法第22条による区域 ゴミ協定書有り 給排水施設に関する協定書有り 共有地に関する協定書有り/壁面後退:有/景観法:有/宅地造成工事規制区域:有/急傾斜地崩壊危険区域:有/高度地区:有/日影制限:有/敷地面積最低限度:有/高さ限度:有。 / |
| 備考 | 「鷺沼」駅利用 タタミコーナーのある居心地よいリビング 南側に広いお庭があり陽当たり良好です |